menu
| ||||||||||||||||||||||||||||||||||||||||||||||||||||||||||||||||||||||||||||||||||||||||||||||||
|
||||
動画 |
物件基本情報 |
| 所在地 | 神奈川県川崎市中原区上新城2丁目3-16 |
||||
|---|---|---|---|---|---|
| 交通 | JR南武線 「武蔵新城駅」 徒歩1分 JR南武線 「武蔵中原駅」 徒歩15分 JR南武線 「武蔵溝ノ口駅」 徒歩30分 |
||||
| 種別 / 構造 | マンション / RC造(鉄筋コンクリート造) | 主要採光面 | 南西 | 所在階 / 階数 | 8階 / 9階 |
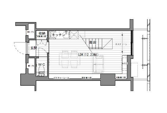
| 築年月 | 2024年2月 | 間取り | 1LDK( 洋室8.3畳(9階)/LDK12.2畳(8階) ) | 専有面積 | 47.96m2 |
物件詳細情報 |
| 損保 | 要 21,500円/2年 | 更新料 | あり 新賃料 1ヶ月 | 鍵交換代 | 35,200円 |
|---|---|---|---|---|---|
| 駐車場 | なし | 近隣駐車場 | 契約期間 借家区分 |
2年 - | |
| 現況 | 空き予定 | 入居可能日 | 2026年6月下旬 | 取引態様 | 専任 |
| 保証人代行会社 | エポスカード 初回保証委託料:総賃料等40% 月次保証料:総賃料等1% | 仲介手数料 | 1.1ヶ月 | バイク置き場 | |
| その他費用 |
|
||||
設備詳細情報 |
| キッチン |
|
|---|---|
| バス・トイレ |
|
| 住空間 |
|
| 設備・サービス |
|
| 特 徴 |
|
| 条件・その他 | ガス:都市 / 水道:公営 / 排水:下水 / 事務所:可 / 2人入居:可 / 楽器相談:不可 / ペット:対応 / 保証人代行:必加入 |
| コメント | ★武蔵新城駅前の複合施設★メゾネットタイプの1LDK♪お部屋は全て間取とコンセプトが異なり40通りの個性あふれる建物です♪コンクリートを活かした力強い造形とアーチの繊細な放物線が調和する空間★細部までこだわったデザインが魅力的なデザイナーズ建物です★ |
| 備 考 | ・仲介手数料・鍵交換代・駆け付けSは消費税10%の税込金額で表示しています。 ・光回線の宅内引込みは入居者様ご自身の費用負担で調査が必要です。 ・小型犬もしくはネコ1匹まで飼育可 ・ペット飼育時:敷金2ヶ月・解約時敷金償却2ヶ月 ・ペット面談あり ・契約開始から1年未満の解約の場合、短期解約違約金として貸主に対し賃料および共益費1ヵ月相当額をお支い頂きます。 ・敷地内及び専有部は禁煙です。 |
学区情報 |
| 小学校区 | () |
中学校区 | () |
|---|
| 情報更新日:2026年04月18日 | 次回更新予定日:2026年05月02日 |


















こちらの物件の空室状況 |
賃貸マンション 18.7万円
武蔵中原駅 徒歩13分
2LDK(57.00u)
2024年築の築浅マンション!オートロック・宅配ボックス完備♪
賃貸マンション 17.2万円
武蔵中原駅 徒歩1分
2LDK(58.84u)
駅徒歩1分♪オールフローリングの2LDKマンション!
賃貸マンション 17.2万円
武蔵新城駅 徒歩7分
1LDK(47.17u)
武蔵新城駅徒歩7分の好立地1LDK!ゆとりある47uの広さ、2面バルコニーの開放感が魅力的★
賃貸マンション 16.7万円
武蔵新城駅 徒歩7分
2LDK(56.07u)
最上階・南西角部屋・日当り良好の2LDKマンション。玄関横に無料のトランクルームがあります!
|